Recent kantoor / winkel / praktijkruimte met MEGA-etalage
Handelspand
                            Abdijstraat 64, 2620 Hemiksem
                        
                                            
                Ref: Abdij
             
     
     
     
     
     
                                 
                                 
                                 
                                 
                                 
                                 
                                 
                                 
                                 
                                 
                                 
                                 
                                180m2 grondopp.
                    Omschrijving
- zichtlocatie
- veel passage
- mega-etalage
- hoekpand
- recent gebouw
- parkeerplaats in de omgeving
- lage gemeenschappelijke kosten
- individuele meters voor nutsvoorzieningen zoals gas en elektriciteit
- goede prijs/kwaliteitsverhouding
- ook geschikt als opbrengsteigendom
Dit handelsgelijkvloers is gelegen naast het station van Hemiksem op een ZICHTLOCATIE met VEEL PASSAGE.
Het is geschikt als praktijkruimte, kantoor of winkel. Het bevindt zich in een mooi RECENT gebouw dat ZEER verzorgd is.
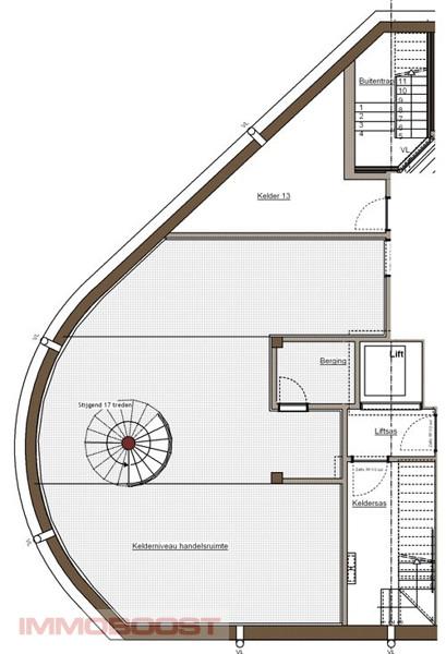
Het HOEKPAND met veel lichtinval heeft een beschikbare ruimte van 180 m2 en bestaat uit een handelsruimte van 95 m2 en een hoge RIANTE kelder van 85 m2.
Omdat de kelders maar liefst 3,35 meter hoog zijn, is hoog stapelen mogelijk.
Je klanten zullen niet te ver moeten zoeken naar een parkeerplaats want die zijn er genoeg in de directe omgeving.
+ achtergelegen garage
+ Er kan eventueel nog een extra kelder(s) bij aangekocht worden.
De kelders zijn niet alleen via het handelspand te bereiken maar er is ook een rechtstreekse toegang via de achterdeur.
Heeft u graag meer informatie ? Bel Sven op het nummer 0477/31.99.93.
 
                    - veel passage
- mega-etalage
- hoekpand
- recent gebouw
- parkeerplaats in de omgeving
- lage gemeenschappelijke kosten
- individuele meters voor nutsvoorzieningen zoals gas en elektriciteit
- goede prijs/kwaliteitsverhouding
- ook geschikt als opbrengsteigendom
Dit handelsgelijkvloers is gelegen naast het station van Hemiksem op een ZICHTLOCATIE met VEEL PASSAGE.
Het is geschikt als praktijkruimte, kantoor of winkel. Het bevindt zich in een mooi RECENT gebouw dat ZEER verzorgd is.
Het HOEKPAND met veel lichtinval heeft een beschikbare ruimte van 180 m2 en bestaat uit een handelsruimte van 95 m2 en een hoge RIANTE kelder van 85 m2.
Omdat de kelders maar liefst 3,35 meter hoog zijn, is hoog stapelen mogelijk.
Je klanten zullen niet te ver moeten zoeken naar een parkeerplaats want die zijn er genoeg in de directe omgeving.
+ achtergelegen garage
+ Er kan eventueel nog een extra kelder(s) bij aangekocht worden.
De kelders zijn niet alleen via het handelspand te bereiken maar er is ook een rechtstreekse toegang via de achterdeur.
Heeft u graag meer informatie ? Bel Sven op het nummer 0477/31.99.93.
Indeling
Verdieping -1
| Kelder | 85 m² | riante vlot bereikbare kelder, eventueel kelder 9 en 13 ook nog beschikbaar | 
Gelijkvloers
| Berging | ||
| Garage | 20 m² | |
| Keuken 1 | niet ingericht | |
| Wc1 | 
Ruimtelijke ordening
| Bouwvergunning | Ja | 
| Recente bestemming | Woongebied | 
| Voorkooprecht | Nee | 
| Verkavelingsvergunning | Nee | 
| Effectief overstromingsgevoelig | Nee | 
| Mogelijk overstromingsgevoelig | Nee | 
| Afgebakend overstromingsgebied | Nee | 
| Afgebakende oeverzone | Nee | 
| Beschermd pand? | Nee | 
EPC gegevens
                    
                                            
                                        0
                
            Comfort
| Beglazing | Dubbel glas | 
| Ramentekst | Aluminium - Zeer goed | 
| Aansluiting elektriciteit | ja | 
| Aansluiting aardgas | ja | 
| Aansluiting waterleiding | ja | 
Financiële info
| Prijs | Info op kantoor | 
Overige Info
| Vrij op | bij akte na betaling | 
| Aantal garages | 1 | 
Bebouwing
| Aantal wc's | 1 | 
| Staat | Nieuwe staat | 
| Grond oppervlakte | 180 m² | 
| Elektrisch keuringsattest | Niet verkregen | 
| Renovatieplicht | Niet ingegeven | 
Alle aanbiedingen gelden onder voorbehoud van fouten, eerdere verkoop, prijswijzigingen of vergetelheid.
     
                 
                                 
                                 
                                 
                                 
                                 
                                 
                                 
                                 
                                 
                                 
                                 
                                